A fényszóró beállítása (Európában)
A fényszóró beállítása


Használat
-
Fújja fel a gumiabroncsokat az előírt nyomásra, és távolítsa el az összes súlyt a gépkocsiból a vezető, a pótkerék és a szerszámok kivételével.
-
A gépkocsival vízszintes talajra kell állni.
-
Rajzoljon a képernyőre függőleges vonalakat (amelyek az adott fényszórók középpontjain haladnak át) és egy vízszintes vonalat (amely a fényszórók középpontján halad át).
-
A fényszóró és az akkumulátor normál állapotában állítsa be a fényszórókat úgy, hogy a legfényesebb rész a vízszintes és függőleges vonalakra essen.
-
A tompított fényszóró balra vagy jobbra állításához forgassa a csavarhúzót (1) az óramutató járásával megegyező, illetve ellentétes irányba. A tompított fényszóró felfelé vagy lefelé történő állításához forgassa a csavarhúzót (2) az óramutató járásával megegyező, illetve ellentétes irányba.
Célzópont

* A: Képernyő
|
A gépkocsi állapota |
Elülső fényszóró (LED típus) |
||||
|---|---|---|---|---|---|
|
Talajtól számított magasság |
Lámpák közötti távolság |
||||
|
H1 (TOMPÍTOTT) |
H2 (TÁVOLSÁGI) |
W1 (TOMPÍTOTT) |
W2 (TÁVOLSÁGI) |
||
|
vezető nélkül [mm] |
A típus |
708 27,9 |
698 27,5 |
1.610: 63,4 |
1.416 55,8 |
|
B típus |
734 28,9 |
679 26,7 |
1 572 61,9 |
1.526 60,5 |
|
|
vezetővel [mm] |
A típus |
698 27,5 |
688 27,1 |
1.610: 63,4 |
1.416 55,8 |
|
B típus |
724 28,5 |
669 26,3 |
1 572 61,9 |
1.526 60,5 |
|
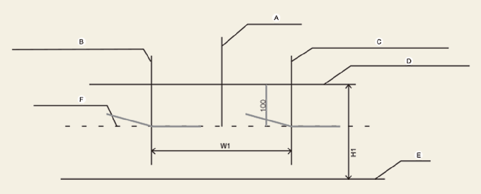
Tompított fényszóró (jobbkormányos jármű)

-
A: A: Járműtengely
-
B: A bal oldali fényszóróizzó középpontjának függőleges vonala
-
C: A jobb oldali fényszóróizzó középpontjának függőleges vonala
-
D: A fényszóró izzó középpontjának vízszintes vonala
-
E: Talaj
-
F: Leválasztó vonal
Használat
-
Kapcsolja fel a tompított fényszórót úgy, hogy a vezető ne tartózkodjon a gépkocsiban.
-
A megfelelő törésvonal a képen látható.
-
A tompított fényszóró beállításakor először a vízszintes beállítást, azután a függőleges beállítást kell elvégezni.
-
Engedje ki a rögzítőféket és állítsa a sebességváltót N (üres) állásba, valamint, ha a jármű fel van szerelve fényszóró magasságállító berendezéssel, állítsa a fényszóró magasságállító berendezést a „0“ állásba.
Tompított fényszóró (jobbkormányos jármű)

-
A: A: Járműtengely
-
B: A bal oldali fényszóróizzó középpontjának függőleges vonala
-
C: A jobb oldali fényszóróizzó középpontjának függőleges vonala
-
D: A fényszóró izzó középpontjának vízszintes vonala
-
E: Talaj
-
F: Leválasztó vonal
Használat
-
Kapcsolja fel a tompított fényszórót úgy, hogy a vezető ne tartózkodjon a gépkocsiban.
-
A megfelelő törésvonal a képen látható.
-
A tompított fényszóró beállításakor először a vízszintes beállítást, azután a függőleges beállítást kell elvégezni.
-
Engedje ki a rögzítőféket és állítsa a sebességváltót N (üres) állásba, valamint, ha a jármű fel van szerelve fényszóró magasságállító berendezéssel, állítsa a fényszóró magasságállító berendezést a „0“ állásba.