Ajovalojen suuntaus (Euroopassa)
Ajovalojen suuntaus


Käyttö
-
Täytä renkaat määritettyihin paineisiin ja poista autosta muu kuorma kuin kuljettaja, vararengas ja työkalut.
-
Auto on sijoitettava tasaiselle alustalle.
-
Piirrä taustalle pystysuorat viivat (jotka kulkevat kunkin ajovalon lampun keskipisteen kautta) ja vaakasuora viiva (joka kulkee ajovalojen lamppujen keskipisteen kautta).
-
Kun ajovalot ja akku ovat normaalissa kunnossa, kohdista ajovalot siten, että kirkkain osa osuu vaaka- ja pystysuorille viivoille.
-
Suuntaa lähivaloa vasemmalle tai oikealle kiertämällä ruuvimeisselillä (1) myötäpäivään tai vastapäivään. Suuntaa lähivaloa ylös tai alas kiertämällä ruuvia (2) myötä- tai vastapäivään.
Kohdistuspiste

* A: Näyttö
|
Auton tila |
Ajovalo (LED) |
||||
|---|---|---|---|---|---|
|
Korkeus maasta |
Lamppujen välinen etäisyys |
||||
|
H1 (MATALA) |
H2 (KORKEA) |
W1 (MATALA) |
W2 (KORKEA) |
||
|
ilman kuljettajaa [mm (tuumaa)] |
Tyyppi A |
708 (27,9) |
698 (27,5) |
1 610 (63,4) |
1 416 (55,8) |
|
Tyyppi B |
734 (28,9) |
679 (26,7) |
1 572 (61,9) |
1 526 (60,5) |
|
|
kuljettajan kanssa [mm (tuumaa)] |
Tyyppi A |
698 (27,5) |
688 (27,1) |
1 610 (63,4) |
1 416 (55,8) |
|
Tyyppi B |
724 (28,5) |
669 (26,3) |
1 572 (61,9) |
1 526 (60,5) |
|
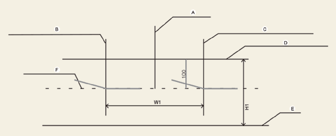
Ajovalo pitkät valot (LHD-auto)

-
A: Auton akseli
-
B: Pystysuora linja vasemman ajovalon polttimon keskeltä
-
C: Pystysuora linja oikean ajovalon polttimon keskeltä
-
D: Vaakasuora viiva ajovalon polttimon keskellä
-
E: Maa
-
F: Leikkauslinja
Käyttö
-
Kytke lähivalot päälle ilman, että ajoneuvossa on kuljettajaa.
-
Leikkauslinjan on kohdistuttava kuvassa esitettyyn leikkauslinjaan.
-
Suunnattaessa lähivaloja pystysuora suuntaus on säädettävä vaakasuoran suuntauksen jälkeen.
-
Vapauta seisontajarru ja aseta vaihde asentoon N (vapaa), ja lisäksi, jos ajovalojen korkeuden säätölaite kuuluu varusteisiin, säädä ajovalojen korkeudensäädön kytkin asentoon 0.
Ajovalo pitkät valot (RHD-auto)

-
A: Auton akseli
-
B: Pystysuora linja vasemman ajovalon polttimon keskeltä
-
C: Pystysuora linja oikean ajovalon polttimon keskeltä
-
D: Vaakasuora viiva ajovalon polttimon keskellä
-
E: Maa
-
F: Leikkauslinja
Käyttö
-
Kytke lähivalot päälle ilman, että ajoneuvossa on kuljettajaa.
-
Leikkauslinjan on kohdistuttava kuvassa esitettyyn leikkauslinjaan.
-
Suunnattaessa lähivaloja pystysuora suuntaus on säädettävä vaakasuoran suuntauksen jälkeen.
-
Vapauta seisontajarru ja aseta vaihde asentoon N (vapaa), ja lisäksi, jos ajovalojen korkeuden säätölaite kuuluu varusteisiin, säädä ajovalojen korkeudensäädön kytkin asentoon 0.