Nastavování předních světlometů a předních mlhových světel (pro Evropu)
Zaměření předních světlometů


Činnost
-
Nafoukněte pneumatiky na stanovený tlak a z vozidla odstraňte veškerou zátěž kromě řidiče, rezervní pneumatiky a nářadí.
-
Vozidlo by mělo stát na rovné ploše.
-
Na zástěnu nakreslete svislé linky (svislé linky procházejí středem příslušných předních světlometů) a vodorovnou linku (vodorovná linka prochází středem předních světlometů).
-
S předními světlomety a akumulátorem v normálním stavu zaměřte přední světla tak, aby nejjasnější světlo procházelo průsečíky vodorovných a svislých linek.
-
Chcete-li namířit potkávací světla více doleva nebo doprava, otáčejte šroubovákem (1) po směru nebo proti směru hodinových ručiček. Pro naklonění potkávacích světel nahoru nebo dolů otáčejte šroubovákem (2) ve směru nebo proti směru hodinových ruček.
Seřízení předních mlhových světel




Přední mlhová světla lze nastavovat stejným způsobem jako přední světlomety. Přední mlhová světla nastavujte, pokud přední mlhová světla i akumulátor v pořádku.
Činnost
-
Otáčením šroubováku ve směru nebo proti směru hodinových ručiček nasměrujte přední mlhové světlo nahoru nebo dolů.
Zaměřovací bod

* A: Zástěna
|
Stav vozidla |
Čelní světlomet (LED typ) |
Přední mlhové světlo (typ LED) (je-li součástí výbavy) |
|||||
|---|---|---|---|---|---|---|---|
|
Výška nad povrchem |
Vzdálenost mezi světly |
Výška nad povrchem |
Vzdálenost mezi světly |
||||
|
Potkávací/dálková světla |
Potkávací/dálková světla |
||||||
|
H1 |
H2 |
W1 |
W2 |
H3 |
W3 |
||
|
bez řidiče [mm (palcích)] |
Typ A |
754,1 (29,7) |
689,1 (27,1) |
1 456 (57,3) |
1 558 (61,3) |
412,5 (16,2) |
1 380 (54,3) |
|
Typ B |
761,1 (30,0) |
704,1 (27,2) |
1 540 (60,6) |
1 540 (60,6) |
405,1 (15,9) |
1 475 (58,1) |
|
|
s řidičem [mm (palcích)] |
Typ A |
744,1 (29,3) |
679,1 (26,3) |
1 456 (57,3) |
1 558 (61,3) |
402,5 (15,8) |
1 380 (54,3) |
|
Typ B |
751,1 (29,6) |
694,1 (27,3) |
1 540 (60,6) |
1 540 (60,6) |
395,1 (15,6) |
1 475 (58,1) |
|
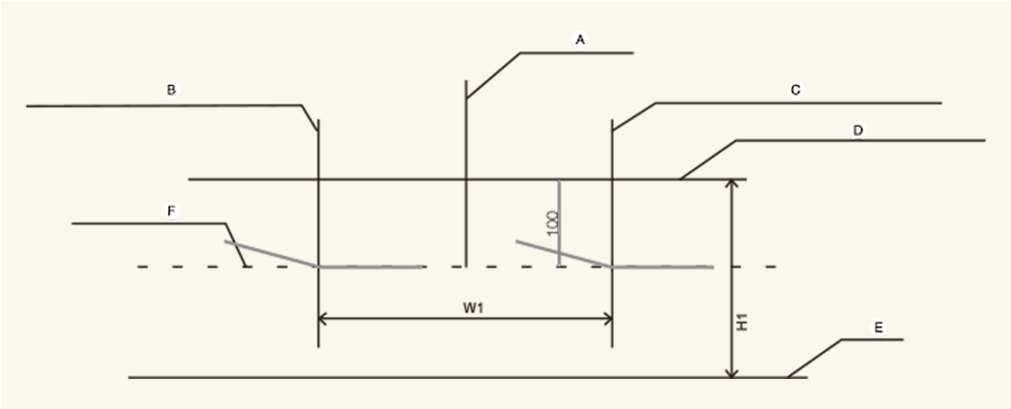
Potkávací světla čelních světlometů (vozidlo s levostranným řízením)

-
A: Osa vozidla
-
B: Svislá linka středu žárovky levého předního světlometu
-
C: Svislá linka vedená středem žárovky pravého předního světlometu
-
D: Vodorovná linka vedená středem žárovky předního světlometu
-
E: Zem
-
F: Hrana stínění
Činnost
-
Zapněte potkávací světla bez osob ve vozidle.
-
Hrana stínění by měla být odpovídat vyobrazené linii.
-
Při nastavování potkávacích světel by po nastavení vodorovného zaměření mělo být nastaveno i svislé zaměření.
-
Pokud je přední světlomet vybaven zařízením pro vyrovnávání světel, nastavte přepínač zařízení pro vyrovnávání světel do polohy 0.
Potkávací světla čelních světlometů (vozidlo s pravostranným řízením)

-
A: Osa vozidla
-
B: Svislá linka středu žárovky levého předního světlometu
-
C: Svislá linka vedená středem žárovky pravého předního světlometu
-
D: Vodorovná linka vedená středem žárovky předního světlometu
-
E: Zem
-
F: Hrana stínění
Činnost
-
Zapněte potkávací světla bez osob ve vozidle.
-
Hrana stínění by měla být odpovídat vyobrazené linii.
-
Při nastavování potkávacích světel by po nastavení vodorovného zaměření mělo být nastaveno i svislé zaměření.
-
Pokud je přední světlomet vybaven zařízením pro vyrovnávání světel, nastavte přepínač zařízení pro vyrovnávání světel do polohy 0.
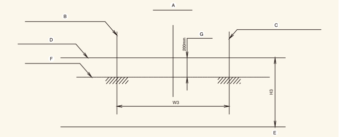
Přední mlhová světla

-
A: Osa vozidla
-
B: Svislá linka středu žárovky levého mlhového světla
-
C: Svislá linka středu žárovky pravého mlhového světla
-
D: Vodorovná linka vedená středem žárovky levého mlhového světla
-
E: Zem
-
F: Hrana stínění
-
G: Horní mez
Činnost
-
Zapněte přední mlhová světla bez osob ve vozidle.
-
Hrana stínění by se měla promítat v přípustném rozsahu (stínovaná oblast).