Direcție far (pentru Europa)
Direcție far


Funcționare
-
Umflați pneurile la presiunea specificată și eliminați orice sarcină asupra vehiculului, cu excepția piesei de antrenare, a pneului de rezervă și a uneltelor.
-
Vehiculul trebuie să fie așezat pe o suprafață plată.
-
Desenați pe ecran linii verticale (linii verticale care să treacă prin centrul farurilor respective) și o linie orizontală (linie orizontală care să treacă prin centrul lămpilor).
-
Cu farul și bateria în stare normală, direcționați farurile astfel încât porțiunea cea mai luminoasă să cadă pe liniile orizontale și verticale.
-
Pentru a direcționa faza scurtă spre stânga sau spre dreapta, rotiți șurubelnița (1) spre dreapta sau spre stânga. Pentru a direcționa faza scurtă în sus sau în jos, rotiți șurubelnița (2) spre dreapta sau spre stânga.
Punct de direcție

* A: Ecran
|
Stare vehicul |
Far (tip LED) |
||||
|---|---|---|---|---|---|
|
Înălțimea solului |
Distanța dintre lămpi |
||||
|
H1 (SCĂZUTĂ) |
H2 (RIDICATĂ) |
W1 (SCĂZUTĂ) |
W2 (RIDICATĂ) |
||
|
fără piesă de antrenare [mm (in.)] |
Tip A |
708 (27.9) |
698 (27.5) |
1,610 (63.4) |
1,416 (55.8) |
|
Tip B |
734 (28.9) |
679 (26,7) |
1.572 (61.9) |
1,526 (60,5) |
|
|
cu piesă de antrenare [mm (in.)] |
Tip A |
698 (27.5) |
688 (27.1) |
1,610 (63.4) |
1,416 (55.8) |
|
Tip B |
724 (28.5) |
669 (26.3) |
1.572 (61.9) |
1,526 (60,5) |
|
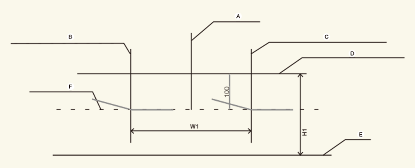
Fază scurtă far (vehicul LHD)

-
A: ax vehicul
-
B: linie verticală din centrul becului farului stânga
-
C: linie verticală din centrul becului farului dreapta
-
D: linie orizontală din centrul becului farului
-
E: sol
-
F: linie ecranare
Funcționare
-
Porniți faza scurtă fără piesa de antrenare la bord.
-
Linia de ecranare ar trebui să fie proiectată în linia de ecranare afișată în imagine.
-
Atunci când direcționați faza scurtă, direcția verticală ar trebui să fie ajustată după ajustarea direcției orizontale.
-
Decuplați frâna de parcare și poziționați schimbătorul în poziția N (Neutru), în plus, dacă dispozitivul de nivelare a farului este prevăzut, reglați comutatorul dispozitivului la „0”.
Fază scurtă far (vehicul RHD)

-
A: ax vehicul
-
B: linie verticală din centrul becului farului stânga
-
C: linie verticală din centrul becului farului dreapta
-
D: linie orizontală din centrul becului farului
-
E: sol
-
F: linie ecranare
Funcționare
-
Porniți faza scurtă fără piesa de antrenare la bord.
-
Linia de ecranare ar trebui să fie proiectată în linia de ecranare afișată în imagine.
-
Atunci când direcționați faza scurtă, direcția verticală ar trebui să fie ajustată după ajustarea direcției orizontale.
-
Decuplați frâna de parcare și poziționați schimbătorul în poziția N (Neutru), în plus, dacă dispozitivul de nivelare a farului este prevăzut, reglați comutatorul dispozitivului la „0”.