justering af forlygter (for Europa)
Justering af forlygter


Operation
-
Pump dækkene op til det angivne dæktryk, og fjern al vægt fra køretøjet undtagen fører, reservehjul og værktøj.
-
Bilen skal stå på et fladt gulv.
-
Tegn lodrette linjer (de lodrette linjer skal gå gennem midten af de respektive forlygters lys) og en vandret linje (den vandrette linje skal gå gennem midten af forlygternes lys) på skærmen.
-
Med forlygterne og batteriet i normal tilstand, indstilles forlygterne, så det klareste lys falder på de vandrette og lodrette linjer.
-
For at justere det korte lys venstre eller højre, drejes skruetrækkeren (1) med uret eller mod uret. For at justere det korte lys op eller ned, drejes skruetrækkeren (2) med uret eller mod uret.
Målet

* A: Skærm
|
Køretøjets stand |
Forlygte (LED-type) |
||||
|---|---|---|---|---|---|
|
Jordhøjde |
Afstand mellem lamper |
||||
|
H1 (LAV) |
H2 (HØJ) |
W1 (LAV) |
W2 (HØJ) |
||
|
uden fører i bilen [mm] |
Type A |
708 (27,9) |
698 (27,5) |
1.610 (63,4) |
1.416 (55,8) |
|
Type B |
734 (28,9) |
679 (26,7) |
1.572 (61,9) |
1.526 (60,5) |
|
|
med fører [mm] |
Type A |
698 (27,5) |
688 (27,1) |
1.610 (63,4) |
1.416 (55,8) |
|
Type B |
724 (28,5) |
669 (26,3) |
1.572 (61,9) |
1.526 (60,5) |
|
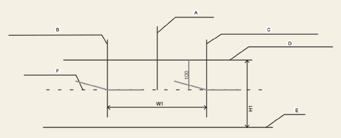
Forlygte, nærlys (LHD-køretøj)

-
A: Køretøjets akse
-
B: Lodret linje fra midten af venstre forlygte
-
C: Lodret linje fra midten af højre forlygte
-
D: Vandret linje fra midten af forlygterne
-
E: Jord
-
F: Afskæringslinje
Operation
-
Tænd for nærlyset uden fører i køretøjet.
-
Afskæringslinjen skal projiceres som vist på billedet.
-
Ved justering af nærlyset skal sidejustering foretages efter at højdejusteringen er udført.
-
Løsn parkeringsbremsen, og sæt gearet i N (Frigear). Hvis nivelleringsenheden for forlygter er monteret, skal kontakten til forlygtejustering indstilles til '0'.
Forlygte, nærlys (højrestyret køretøj)

-
A: Køretøjets akse
-
B: Lodret linje fra midten af venstre forlygte
-
C: Lodret linje fra midten af højre forlygte
-
D: Vandret linje fra midten af forlygterne
-
E: Jord
-
F: Afskæringslinje
Operation
-
Tænd for nærlyset uden fører i køretøjet.
-
Afskæringslinjen skal projiceres som vist på billedet.
-
Ved justering af nærlyset skal sidejustering foretages efter at højdejusteringen er udført.
-
Løsn parkeringsbremsen, og sæt gearet i N (Frigear). Hvis nivelleringsenheden for forlygter er monteret, skal kontakten til forlygtejustering indstilles til '0'.