Регулировка угла наклона передних фар (для Европы)
Регулировка угла наклона головных фар


Эксплуатация
-
Установите надлежащее давление в шинах и уберите нагрузку из автомобиля, за исключением водителя, запасного колеса и инструментов.
-
Автомобиль необходимо расположить на ровной площадке.
-
Начертите на экране вертикальные и горизонтальные линии (проходящие через центры соответствующих фар).
-
Убедившись в исправном состоянии фар и аккумуляторной батареи, направьте фары так, чтобы максимальная яркость падала на горизонтальные и вертикальные линии.
-
Чтобы направить ближний свет влево или вправо, поверните отвертку (1) по часовой стрелке или против часовой стрелки. Чтобы направить ближний свет вверх или вниз, поверните отвертку (2) по часовой стрелке или против часовой стрелки.
Точка наводки

* A: экран
|
Состояние автомобиля |
Передняя фара (светодиодная) |
||||
|---|---|---|---|---|---|
|
Высота от поверхности земли |
Расстояние между фарами |
||||
|
H1 (LOW) |
H2 (HIGH) |
W1 (LOW) |
W2 (HIGH) |
||
|
без водителя [мм (дюймы)] |
Тип A |
708 (27,9) |
698 (27,5) |
1 610 (63,4) |
1 416 (55,8) |
|
Тип B |
734 (28,9) |
679 (26,7) |
1 572 (61,9) |
1 526 (60,5) |
|
|
с водителем [мм (дюймы)] |
Тип A |
698 (27,5) |
688 (27,1) |
1 610 (63,4) |
1 416 (55,8) |
|
Тип B |
724 (28,5) |
669 (26,3) |
1 572 (61,9) |
1 526 (60,5) |
|
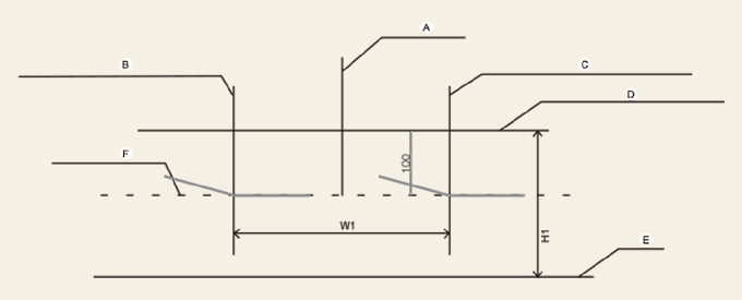
Передняя фара ближнего света (автомобиль с левосторонним рулем)

-
A: Ось автомобиля
-
B: Вертикальная линия центра лампы левой головной фары
-
C: Вертикальная линия центра лампы правой головной фары
-
D: Горизонтальная линия центра лампы головной фары
-
E: Земля
-
F: Линия светотеневой границы
Эксплуатация
-
Включите ближний свет без водителя в автомобиле.
-
Линия светотеневой границы должна соответствовать линии границы на рисунке.
-
Сначала выполняется горизонтальная регулировка фар, затем вертикальная.
-
Отключите стояночный тормоз и установите передачу в положение N (нейтральное). Кроме того, если установлено устройство регулировки угла наклона передних фар, установите переключатель устройства регулировки угла наклона передних фар в положение «0».
Головная фара ближнего света (автомобиль с правосторонним рулем)

-
A: Ось автомобиля
-
B: Вертикальная линия центра лампы левой головной фары
-
C: Вертикальная линия центра лампы правой головной фары
-
D: Горизонтальная линия центра лампы головной фары
-
E: Земля
-
F: Линия светотеневой границы
Эксплуатация
-
Включите ближний свет без водителя в автомобиле.
-
Линия светотеневой границы должна соответствовать линии границы на рисунке.
-
Сначала выполняется горизонтальная регулировка фар, затем вертикальная.
-
Отключите стояночный тормоз и установите передачу в положение N (нейтральное). Кроме того, если установлено устройство регулировки угла наклона передних фар, установите переключатель устройства регулировки угла наклона передних фар в положение «0».