Ρύθμιση δέσμης προβολέων (για την Ευρώπη)
Σκόπευση προβολέων


Λειτουργία
-
Φουσκώστε τα λάστιχα έτσι ώστε να έχουν την προβλεπόμενη πίεση και αφαιρέστε οποιοδήποτε φορτίο από το όχημα, εκτός του οδηγού, της ρεζέρβας και των εργαλείων.
-
Το αυτοκίνητο θα πρέπει να είναι σταθμευμένο σε επίπεδο έδαφος.
-
Σχεδιάστε στο παραπέτασμα δύο κατακόρυφες γραμμές (καθεμία από τις οποίες θα πρέπει να περνάει από το κέντρο του αντίστοιχου προβολέα) και μία οριζόντια γραμμή (που θα πρέπει να περνάει από το κέντρο και των δύο προβολέων).
-
Με τους προβολείς και την μπαταρία σε κανονική κατάσταση, ρυθμίστε τη σκόπευση των προβολέων έτσι ώστε το πιο φωτεινό κομμάτι της δέσμης τους να πέφτει πάνω στις οριζόντιες και κατακόρυφες γραμμές.
-
Για να ρυθμίσετε τη μικρή σκάλα προς τα αριστερά ή δεξιά, γυρίστε το κατσαβίδι (1) δεξιόστροφα ή αριστερόστροφα αντίστοιχα. Για να ρυθμίσετε τη μικρή σκάλα προς τα επάνω ή κάτω, γυρίστε το κατσαβίδι (2) δεξιόστροφα ή αριστερόστροφα αντίστοιχα.
Σημείο σκόπευσης

* A: Παραπέτασμα
|
Κατάσταση αυτοκινήτου |
Προβολέας (τύπου LED) |
||||
|---|---|---|---|---|---|
|
Ύψος από το έδαφος |
Απόσταση μεταξύ των προβολέων |
||||
|
H1 (ΧΑΜΗΛΉ) |
H2 (ΥΨΗΛΉ) |
W1 (ΧΑΜΗΛΉ) |
W2 (ΥΨΗΛΉ) |
||
|
χωρίς οδηγό [χιλ. (ίντσες)] |
Τύπος Α |
664 (26,1) |
615 (24,2) |
1.556 (61,3) |
1.620 (63,8) |
|
Τύπος Β |
1.602 (63) |
1.576 (62) |
|||
|
με οδηγό [χιλ. (ίντσες)] |
Τύπος Α |
654 (25,7) |
605 (23,8) |
1.556 (61,3) |
1.620 (63,8) |
|
Τύπος Β |
1.602 (63) |
1.576 (62) |
|||
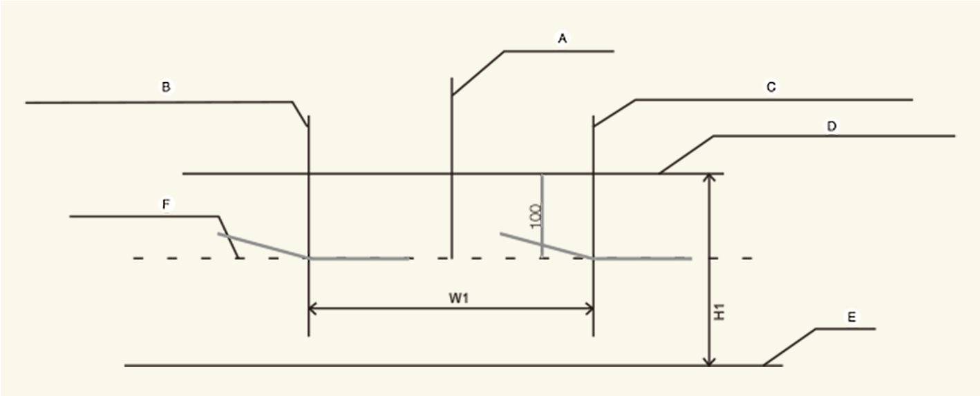
Μικρή σκάλα προβολέων (αριστεροτίμονο αυτοκίνητο)

-
A: Άξονας αυτοκινήτου
-
Β: Κατακόρυφη γραμμή στο κέντρο του αριστερού προβολέα
-
C: Κατακόρυφη γραμμή στο κέντρο του δεξιού προβολέα
-
D: Οριζόντια γραμμή στο κέντρο των προβολέων
-
Ε: Έδαφος
-
F: Γραμμή ορίου
Λειτουργία
-
Ανάψτε τη μικρή σκάλα, χωρίς να επιβαίνει ο οδηγός στο όχημα.
-
Το όριο της δέσμης θα πρέπει να προβάλλεται πάνω στη γραμμή ορίου που βλέπετε στην εικόνα.
-
Κατά τη ρύθμιση σκόπευσης της μικρής σκάλας, θα πρέπει να ρυθμίσετε τη δέσμη του φωτός πρώτα κατακόρυφα και μετά οριζόντια.
-
Τραβήξτε το χειρόφρενο και βάλτε τον επιλογέα ταχυτήτων στη θέση N (Νεκρά) και επίσης, εάν διατίθεται διάταξη ρύθμισης ύψους προβολέων, ρυθμίστε τον διακόπτη της εν λόγω διάταξης στη θέση '0'.
Μικρή σκάλα προβολέων (δεξιοτίμονο όχημα)

-
A: Άξονας αυτοκινήτου
-
Β: Κατακόρυφη γραμμή στο κέντρο του αριστερού προβολέα
-
C: Κατακόρυφη γραμμή στο κέντρο του δεξιού προβολέα
-
D: Οριζόντια γραμμή στο κέντρο των προβολέων
-
Ε: Έδαφος
-
F: Γραμμή ορίου
Λειτουργία
-
Ανάψτε τη μικρή σκάλα, χωρίς να επιβαίνει ο οδηγός στο όχημα.
-
Το όριο της δέσμης θα πρέπει να προβάλλεται πάνω στη γραμμή ορίου που βλέπετε στην εικόνα.
-
Κατά τη ρύθμιση σκόπευσης της μικρής σκάλας, θα πρέπει να ρυθμίσετε τη δέσμη του φωτός πρώτα κατακόρυφα και μετά οριζόντια.
-
Τραβήξτε το χειρόφρενο και βάλτε τον επιλογέα ταχυτήτων στη θέση N (Νεκρά) και επίσης, εάν διατίθεται διάταξη ρύθμισης ύψους προβολέων, ρυθμίστε τον διακόπτη της εν λόγω διάταξης στη θέση '0'.