Mierenie svetlometov (pre Európu)
Mierenie svetlometov


Prevádzka
-
Nahustite pneumatiky na predpísaný tlak a odstráňte z vozidla všetky záťaže s výnimkou vodiča, náhradného kolesa a nástrojov.
-
Vozidlo by malo byť umiestnené na rovnom povrchu.
-
Nakreslite na obrazovke zvislé čiary (zvislé čiary, ktoré prechádzajú príslušnými stredmi svetlometov) a vodorovnú čiaru (vodorovnú čiaru prechádzajúci cez stredu svetlometov).
-
Keď sú svetlomety a batéria v normálnom stave, nasmerujte svetlomety tak, aby najjasnejšia časť dopadala na vodorovné a zvislé čiary.
-
Ak chcete namieriť stretávacie svetlá viac doľava alebo doprava, otáčajte skrutkovačom (1) v smere alebo proti smeru hodinových ručičiek. Na naklonenie stretávacích svetiel hore alebo dole otáčajte skrutkovačom (2) v smere alebo proti smeru hodinových ručičiek.
Bod namierenia

* A: Obrazovka
|
Stav vozidla |
Svetlomet (typ LED) |
||||
|---|---|---|---|---|---|
|
Výška nad zemou |
Vzdialenosť medzi svetlami |
||||
|
H1 (LOW) |
H2 (HIGH) |
W1 (LOW) |
W2 (HIGH) |
||
|
bez vodiča [mm] |
Typ A |
664 (26,1) |
615 (24,2) |
1 556 (61,3) |
1 620 (63,8) |
|
Typ B |
1 602 (63) |
1 576 (62) |
|||
|
s vodičom [mm] |
Typ A |
654 (25,7) |
605 (23,8) |
1 556 (61,3) |
1 620 (63,8) |
|
Typ B |
1 602 (63) |
1 576 (62) |
|||
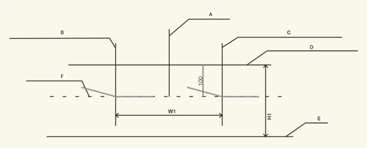
Stretávacie svetlá svetlometov (vozidlo LHD)

-
A: Os vozidla
-
B: Vertikálna línia stredu žiarovky ľavého predného svetlometu
-
C: Vertikálna línia stredu žiarovky pravého predného svetlometu
-
D: Horizontálna línia stredu žiarovky predného svetlometu
-
E: Zem
-
F: Hraničná línia
Prevádzka
-
Zapnite stretávacie svetlá bez prítomnosti vodiča vo vozidle.
-
Hraničná línia by sa mala zhodovať s hraničnou líniou zobrazenou na obrázku.
-
Keď zameriavate stretávacie svetlá, vertikálne zameranie sa vykonáva po upravení horizontálneho zamerania.
-
Uvoľnite parkovaciu brzdu a preraďte do polohy N (neutrál), ak je navyše k dispozícii zariadenie na nastavenie predných svetiel, prepnite ho do polohy „0“.
Stretávacie svetlá svetlometov (vozidlo RHD)

-
A: Os vozidla
-
B: Vertikálna línia stredu žiarovky ľavého predného svetlometu
-
C: Vertikálna línia stredu žiarovky pravého predného svetlometu
-
D: Horizontálna línia stredu žiarovky predného svetlometu
-
E: Zem
-
F: Hraničná línia
Prevádzka
-
Zapnite stretávacie svetlá bez prítomnosti vodiča vo vozidle.
-
Hraničná línia by sa mala zhodovať s hraničnou líniou zobrazenou na obrázku.
-
Keď zameriavate stretávacie svetlá, vertikálne zameranie sa vykonáva po upravení horizontálneho zamerania.
-
Uvoľnite parkovaciu brzdu a preraďte do polohy N (neutrál), ak je navyše k dispozícii zariadenie na nastavenie predných svetiel, prepnite ho do polohy „0“.