Esitulede valgusvihu suuna reguleerimine (Euroopa)
Esitulede valgusvihu suuna reguleerimine


Kasutamine
-
Pumbake rehvid ettenähtud rõhuni ja eemaldage autost kogu koormus, väljaarvatus juht, varuratas ja tööriistad.
-
Auto peab asuma tasasel horisontaalsel aluspinnal (põrandal).
-
Joonistage ekraanile vertikaaljooned (vertikaaljooned peavad läbima vastava esitule valgusvihukeskosa) ja horisontaaljoon (horisontaaljoon peab läbima esitulede valgusvihu keskosa).
-
Kui esituled ja aku on normaalses seisukorras, suunake esitulede valgusviht nii, et kõige eredam osa langeb horisontaal- ja vertikaaljoontele.
-
Lähitule valgusvihu suunamiseks vasakule või paremale keerake kruvikeerajat (1) päri- või vastupäeva. Lähitule valgusvihu suunamiseks üles- või allapoole keerake kruvikeerajat (2) päri- või vastupäeva.
Valgusvihu suund

* A: Ekraan
|
Auto seisund |
Esituled (LED-tüüpi) |
||||
|---|---|---|---|---|---|
|
Kõrgus maapinnast |
Lampidevaheline kaugus |
||||
|
H1 (MADAL) |
H2 (KÕRGE) |
W1 (MADAL) |
W2 (KÕRGE) |
||
|
juhita [mm (tolli)] |
Tüüp A |
708 (27,9) |
698 (27,5) |
1 610 (63,4) |
1 416 (55,8) |
|
Tüüp B |
734 (28,9) |
679 (26,7) |
1 572 (61,9) |
1 526 (60,5) |
|
|
juhiga [mm (tolli)] |
Tüüp A |
698 (27,5) |
688 (27,1) |
1 610 (63,4) |
1 416 (55,8) |
|
Tüüp B |
724 (28,5) |
669 (26,3) |
1 572 (61,9) |
1 526 (60,5) |
|
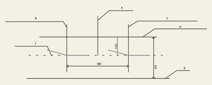
Esitule lähituli (vasakpoolse rooliga sõiduk)

-
A: Sõiduki telg
-
B: Vasaku esitule pirni keskosa
-
C: Parema esitule pirni keskosa
-
D: Esitule keskosa horisontaaljoon
-
E: Maapind
-
F: Lõikejoon
Kasutamine
-
Lülitage lähituled sisse, kui juht ei ole autos.
-
Valgustatud ala piirjoon peab asuma joonisel näidatud valgustatud ala piirjoonel.
-
Lähitule valgusvihu suuna reguleerimisel tuleb valgusvihku esmalt reguleerida horisontaalsuunas, seejärel vertikaalsuunas.
-
Lülitage seisupidur välja ja lülitage käik neutraalasendisse N. Lisaks reguleerige esitulede reguleerimise lüliti asendisse „0“ (kui on varustuses).
Esitule lähituli (parempoolse rooliga sõiduk)

-
A: Sõiduki telg
-
B: Vasaku esitule pirni keskosa
-
C: Parema esitule pirni keskosa
-
D: Esitule keskosa horisontaaljoon
-
E: Maapind
-
F: Lõikejoon
Kasutamine
-
Lülitage lähituled sisse, kui juht ei ole autos.
-
Valgustatud ala piirjoon peab asuma joonisel näidatud valgustatud ala piirjoonel.
-
Lähitule valgusvihu suuna reguleerimisel tuleb valgusvihku esmalt reguleerida horisontaalsuunas, seejärel vertikaalsuunas.
-
Lülitage seisupidur välja ja lülitage käik neutraalasendisse N. Lisaks reguleerige esitulede reguleerimise lüliti asendisse „0“ (kui on varustuses).