Usmerenost prednjeg svetla (za Evropu)
Usmerenost prednjeg svetla


Način rada
-
Napumpajte pneumatike do naznačenog pritiska i uklonite sav teret iz vozila osim vozača, rezervnog pneumatika i alata.
-
Vozilo bi trebalo da bude na ravnoj površini.
-
Na zidu nacrtajte vertikalne linije (vertikalne linije prolaze kroz centar oba prednja svetla) i horizontalnu liniju (horizontalna linija prolazi kroz centar oba prednja svetla).
-
Sa prednjim svetlima i akumulatorom u ispravnom stanju, usmerite svetla tako da najsvetliji deo pada na horizontalnu i vertikalnu liniju.
-
Da biste pomerili kratko svetlo ulevo ili udesno, okrenite odvijač (1) udesno ili ulevo. Da biste pomerili kratko svetlo nagore ili nadole, okrenite odvijač (2) udesno ili ulevo.
Tačka usmerenja

* A: Zid
|
Stanje vozila |
Prednje svetlo (tip sa LED sijalicama) |
||||
|---|---|---|---|---|---|
|
Visina od tla |
Rastojanje između svetala |
||||
|
H1 (KRATKO) |
H2 (DUGO) |
W1 (KRATKO) |
W2 (DUGO) |
||
|
bez vozača [mm (in)] |
Tip A |
664 (26,1) |
615 (24,2) |
1.556 (61,3) |
1.620 (63,8) |
|
Tip B |
1.602 (63) |
1.576 (62) |
|||
|
sa vozačem [mm (in)] |
Tip A |
654 (25,7) |
605 (23,8) |
1.556 (61,3) |
1.620 (63,8) |
|
Tip B |
1.602 (63) |
1.576 (62) |
|||
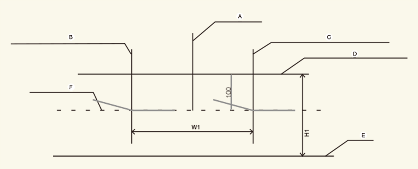
Kratko prednje svetlo (vozilo za vožnju desnom stranom)

-
A: Vertikalna osa
-
B: Vertikalna linija koja prolazi kroz centar sijalice prednjeg levog svetla
-
C: Vertikalna linija koja prolazi kroz centar sijalice prednjeg desnog svetla
-
D: Horizontalna linija koja prolazi kroz centar sijalice prednjeg svetla
-
E: Tlo
-
F: Linija preseka
Način rada
-
Uključite kratko svetlo dok vozač sedi u vozilu.
-
Linija preseka bi trebalo da se poklopi sa linijom preseka prikazanom na slici.
-
Prilikom podešavanja usmerenosti kratkog svetla, vertikalno podešavanje se obavlja nakon podešavanja horizontalne usmerenosti.
-
Deaktivirajte kočnicu za parkiranje i prebacite menjač u položaj N (neutralno), zatim, ako postoji uređaj za podešavanje visine prednjeg svetla, podesite ga na „0”.
Kratko prednje svetlo (vozilo za vožnju levom stranom)

-
A: Vertikalna osa
-
B: Vertikalna linija koja prolazi kroz centar sijalice prednjeg levog svetla
-
C: Vertikalna linija koja prolazi kroz centar sijalice prednjeg desnog svetla
-
D: Horizontalna linija koja prolazi kroz centar sijalice prednjeg svetla
-
E: Tlo
-
F: Linija preseka
Način rada
-
Uključite kratko svetlo dok vozač sedi u vozilu.
-
Linija preseka bi trebalo da se poklopi sa linijom preseka prikazanom na slici.
-
Prilikom podešavanja usmerenosti kratkog svetla, vertikalno podešavanje se obavlja nakon podešavanja horizontalne usmerenosti.
-
Deaktivirajte kočnicu za parkiranje i prebacite menjač u položaj N (neutralno), zatim, ako postoji uređaj za podešavanje visine prednjeg svetla, podesite ga na „0”.