Usmjeravanje prednjih svjetala (za Europu)
Usmjeravanje prednjih svjetala


Rad
-
Napumpajte gume do navedenog tlaka i uklonite sav teret iz vozila, osim vozača, rezervne gume i alata.
-
Vozilo treba postaviti na ravnu podlogu.
-
Na zaslonu nacrtajte okomite crte (okomite crte koje prolaze kroz odgovarajuća središta prednjih svjetala) i vodoravnu crtu (vodoravna crta koja prolazi kroz središte prednjih svjetala).
-
S glavnim svjetlom i baterijom u normalnom stanju, usmjerite prednja svjetla tako da najsvjetliji dio padne na vodoravne i okomite crte.
-
Kako biste usmjerili kratka svjetla ulijevo ili udesno, okrečite odvijač (1) u smjeru kazaljke na satu ili u smjeru suprotnom od kazaljke na satu. Kako biste usmjerili kratka svjetla gore ili dolje, okrečite odvijač (2) u smjeru kazaljke na satu ili u smjeru suprotnom od kazaljke na satu.
Točka usmjeravanja

* A: Zaslon
|
Stanje vozila |
Prednje svjetlo (LED) |
||||
|---|---|---|---|---|---|
|
Visina tla |
Udaljenost između svjetiljki |
||||
|
H1 (KRATKA) |
H2 (DUGA) |
W1 (KRATKA) |
W2 (DUGA) |
||
|
bez vozača [mm (in)] |
Tip A |
708 (27,9) |
698 (27,5) |
1610 (63,4) |
1416 (55,8) |
|
Tip B |
734 (28,9) |
679 (26,7) |
1572 (61,9) |
1526 (60,5) |
|
|
s vozačem [mm (in)] |
Tip A |
698 (27,5) |
688 (27,1) |
1610 (63,4) |
1416 (55,8) |
|
Tip B |
724 (28,5) |
669 (26,3) |
1572 (61,9) |
1526 (60,5) |
|
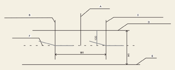
Snop prednjih kratkih svjetala (LHD vozilo)

-
A: Os vozila
-
B: Okomita crta sredine žarulje lijevog prednjeg svjetla
-
C: Okomita crta sredine žarulje desnog prednjeg svjetla
-
D: Vodoravna crta sredine žarulje prednjeg svjetla
-
E: Tlo
-
F: Granična crta
Rad
-
Uključite kratka svjetla bez vozača u vozilu.
-
Graničnu crtu treba projicirati u graničnoj liniji prikazanoj na slici.
-
Kada usmjeravate kratka svjetla, okomito usmjeravanje treba prilagoditi nakon podešavanja vodoravnog usmjeravanja.
-
Otpustite parkirnu kočnicu i stavite mjenjač u položaj N (Neutralno) te, ako postoji uređaj za izravnavanje prednjih svjetala, podesite prekidač uređaja za izravnavanje prednjih svjetala na '0'.
Snop prednjih kratkih svjetala (RHD vozilo)

-
A: Os vozila
-
B: Okomita crta sredine žarulje lijevog prednjeg svjetla
-
C: Okomita crta sredine žarulje desnog prednjeg svjetla
-
D: Vodoravna crta sredine žarulje prednjeg svjetla
-
E: Tlo
-
F: Granična crta
Rad
-
Uključite kratka svjetla bez vozača u vozilu.
-
Graničnu crtu treba projicirati u graničnoj liniji prikazanoj na slici.
-
Kada usmjeravate kratka svjetla, okomito usmjeravanje treba prilagoditi nakon podešavanja vodoravnog usmjeravanja.
-
Otpustite parkirnu kočnicu i stavite mjenjač u položaj N (Neutralno) te, ako postoji uređaj za izravnavanje prednjih svjetala, podesite prekidač uređaja za izravnavanje prednjih svjetala na '0'.