Orientamento dei fari (per l'Europa)
Orientamento dei fari


Funzionamento
-
Gonfiare gli pneumatici con la pressione specificata e rimuovere qualsiasi carico dal veicolo ad eccezione di conducente, pneumatico di scorta e attrezzi.
-
Il veicolo deve essere parcheggiato su un pavimento in piano.
-
Disegnare due linee verticali (Linee verticali passanti attraverso il centro del rispettivo faro) e una linea orizzontale (Linea orizzontale passante attraverso il centro dei due fari) sullo schermo.
-
Con fari e batteria in condizione normale, orientare i fari in modo che la porzione con la luminosità massima cada sulle linee orizzontale e verticali.
-
Per orientare il faro anabbagliante verso sinistra o verso destra, ruotare il cacciavite (1) in senso orario o antiorario. Per orientare il faro anabbagliante verso l’alto o verso il basso, ruotare il cacciavite (2) in senso orario o antiorario.
Punto di orientamento

* A: Schermo
|
Condizione veicolo |
Faro (tipo a LED) |
||||
|---|---|---|---|---|---|
|
Altezza da terra |
Distanza tra le luci |
||||
|
H1 (LOW) |
H2 (HIGH) |
W1 (LOW) |
W2 (HIGH) |
||
|
senza conducente [mm] |
Tipo A |
664 (26,1) |
615 (24,2) |
1.556 (61,3) |
1.620 (63,8) |
|
Tipo B |
1.602 (63) |
1.576 (62) |
|||
|
con il conducente [mm] |
Tipo A |
654 (25,7) |
605 (23,8) |
1.556 (61,3) |
1.620 (63,8) |
|
Tipo B |
1.602 (63) |
1.576 (62) |
|||
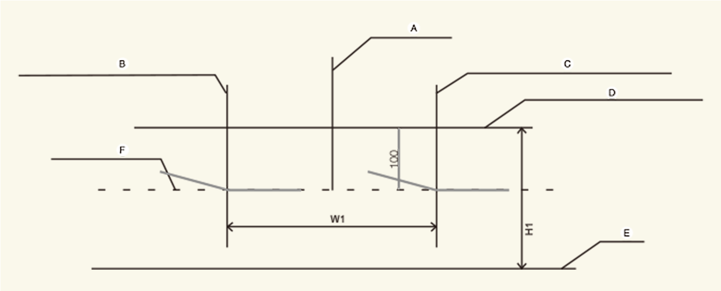
Luce anabbagliante faro (guida a sinistra)

-
A: Asse verticale
-
B: Linea verticale del centro della lampadina del faro lato sinistro
-
C: Linea verticale del centro della lampadina del faro lato destro
-
D: Linea orizzontale del centro lampadina faro
-
E: Terreno
-
F: Linea di demarcazione
Funzionamento
-
Accendere le luci anabbaglianti senza conducente a bordo.
-
La linea di demarcazione deve essere proiettata entro la linea di demarcazione indicata in figura.
-
Quando si orientano le luci anabbaglianti, l'orientamento verticale deve essere regolato dopo aver regolato l'orientamento orizzontale.
-
Disinserire il freno di stazionamento e mettere la marcia in N (Folle). Inoltre, se è presente il dispositivo di regolazione dell’assetto dei fari, regolarlo su '0'.
Luce anabbagliante faro (guida a destra)

-
A: Asse verticale
-
B: Linea verticale del centro della lampadina del faro lato sinistro
-
C: Linea verticale del centro della lampadina del faro lato destro
-
D: Linea orizzontale del centro lampadina faro
-
E: Terreno
-
F: Linea di demarcazione
Funzionamento
-
Accendere le luci anabbaglianti senza conducente a bordo.
-
La linea di demarcazione deve essere proiettata entro la linea di demarcazione indicata in figura.
-
Quando si orientano le luci anabbaglianti, l'orientamento verticale deve essere regolato dopo aver regolato l'orientamento orizzontale.
-
Disinserire il freno di stazionamento e mettere la marcia in N (Folle). Inoltre, se è presente il dispositivo di regolazione dell’assetto dei fari, regolarlo su '0'.