Usmjeravanje prednjih svjetala i prednje lampice za maglu (za Europu)
Usmjeravanje prednjih svjetala


Rad
-
Napumpajte gume do navedenog tlaka i uklonite sve terete iz vozila, osim vozača, rezervne gume i alata.
-
Vozilo treba postaviti na ravnu podlogu.
-
Nacrtajte okomite crte (okomite crte koje prolaze kroz odgovarajuća središta prednjih svjetala) i vodoravnu crtu (vodoravna crta koja prolazi kroz središte prednjih svjetala) na zaslonu.
-
S glavnim svjetlom i akumulatorom u normalnom stanju, usmjerite prednja svjetla tako da najsvjetliji dio padne na vodoravne i okomite crte.
-
Kako biste usmjerili kratka svjetla ulijevo ili udesno, okrečite odvijač (1) u smjeru kazaljke na satu ili u smjeru suprotnom od kazaljke na satu. Kako biste usmjerili kratka svjetla gore ili dolje, okrečite odvijač (2) u smjeru kazaljke na satu ili u smjeru suprotnom od kazaljke na satu.
Usmjeravanje prednjeg svjetla za maglu




Prednje svjetlo za maglu može se umjeriti na isti način kao i usmjeravanje prednjih svjetala. Prednja svjetla za maglu usmjerite kada su prednja svjetla za maglu i akumulator u normalnom stanju.
Rad
-
Okrečite odvijač u smjeru kazaljke na satu kako biste usmjerili prednje svjetlo za maglu gore ili dolje.
Točka usmjeravanja

* A: Zaslon
|
Stanje vozila |
Prednje svjetlo (LED) |
Prednje svjetlo za maglu (LED) (ako je u opremi) |
|||||
|---|---|---|---|---|---|---|---|
|
Visina tla |
Udaljenost između svjetiljki |
Visina tla |
Udaljenost između svjetiljki |
||||
|
Kratka / duga svjetla |
Kratka / duga svjetla |
||||||
|
H1 |
H2 |
W1 |
W2 |
H3 |
W3 |
||
|
bez vozača [mm (in)] |
Tip A |
754,1 (29,7) |
689,1 (27,1) |
1456 (57,3) |
1558 (61,3) |
412,5 (16,2) |
1380 (54,3) |
|
Tip B |
761,1 (30,0) |
704,1 (27,2) |
1540 (60,6) |
1540 (60,6) |
405,1 (15,9) |
1475 (58,1) |
|
|
s vozačem [mm (in)] |
Tip A |
744,1 (29,3) |
679,1 (26,3) |
1456 (57,3) |
1558 (61,3) |
402,5 (15,8) |
1380 (54,3) |
|
Tip B |
751,1 (29,6) |
694,1 (27,3) |
1540 (60,6) |
1540 (60,6) |
395,1 (15,6) |
1475 (58,1) |
|
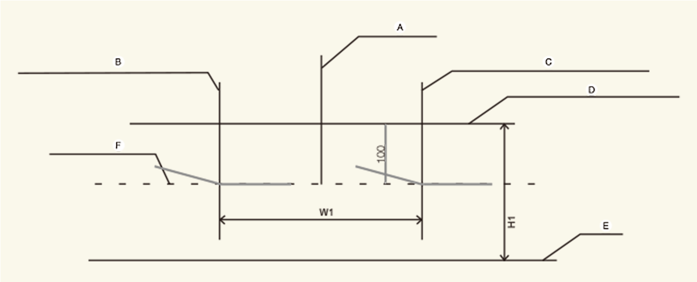
Snop prednjih kratkih svjetala (LHD vozilo)

-
A: Os vozila
-
B: Okomita crta sredine lijeve žarulje prednjeg svjetla
-
C: Okomita crta sredine desne žarulje prednjeg svjetla
-
D: Vodoravna crta sredine žarulje prednjeg svjetla
-
E: Tlo
-
F: Granična crta
Rad
-
Uključite kratka svjetla bez vozača u vozilu.
-
Graničnu crtu treba projicirati u graničnoj liniji prikazanoj na slici.
-
Kada usmjeravate kratka svjetla, okomito usmjeravanje treba prilagoditi nakon podešavanja vodoravnog usmjeravanja.
-
Ako je u opremi uređaj za izravnavanje glavnih svjetala, podesite prekidač uređaja za izravnavanje prednjih svjetala s položajima 0.
Snop prednjih kratkih svjetala (RHD vozilo)

-
A: Os vozila
-
B: Okomita crta sredine lijeve žarulje prednjeg svjetla
-
C: Okomita crta sredine desne žarulje prednjeg svjetla
-
D: Vodoravna crta sredine žarulje prednjeg svjetla
-
E: Tlo
-
F: Granična crta
Rad
-
Uključite kratka svjetla bez vozača u vozilu.
-
Graničnu crtu treba projicirati u graničnoj liniji prikazanoj na slici.
-
Kada usmjeravate kratka svjetla, okomito usmjeravanje treba prilagoditi nakon podešavanja vodoravnog usmjeravanja.
-
Ako je u opremi uređaj za izravnavanje glavnih svjetala, podesite prekidač uređaja za izravnavanje prednjih svjetala s položajima 0.
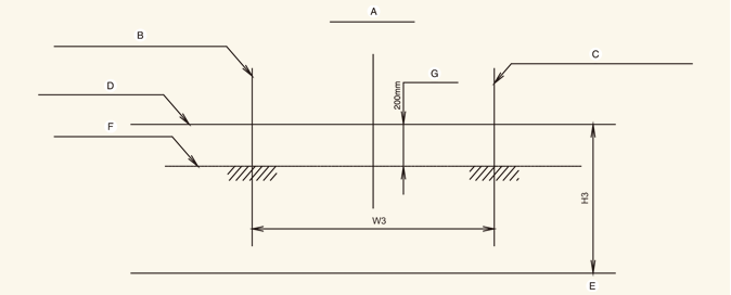
Prednje svjetlo za maglu

-
A: Os vozila
-
B: Okomita crta sredine lijeve žarulje prednjeg svjetla
-
C: Okomita crta sredine desne žarulje prednjeg svjetla
-
D: Vodoravna crta sredine žarulje prednjeg svjetla
-
E: Tlo
-
F: Granična crta
-
G: Gornja granica
Rad
-
Uključite prednje svjetlo za maglu bez vozača u vozilu.
-
Granična linija treba biti projicirana u dopuštenom rasponu (zasjenjeno područje).