Regulação dos faróis (para a Europa)
Direcionamento dos faróis


Funcionamento
-
Encha os pneus com a pressão indicada e retire eventuais cargas do veículo exceto o condutor, o pneu sobresselente e as ferramentas.
-
O veículo deve ser colocado num local plano.
-
Trace linhas verticais (que passem pelos respetivos centros dos faróis) e uma linha horizontal (que passe pelo centro dos faróis) na tela.
-
Com os faróis e a bateria em condições normais, direcione os faróis de modo a que a parte mais luminosa assente nas linhas horizontal e verticais.
-
Para direcionar os médios para a esquerda ou para a direita, rode a chave de fendas (1) para a direita ou para a esquerda. Para direcionar os médios para cima ou para baixo, rode a chave de fendas (2) para a direita ou para a esquerda.
Ponto focal

* A: Tela
|
Condições do veículo |
Faróis dianteiros (tipo LED) |
||||
|---|---|---|---|---|---|
|
Altura ao solo |
Distância entre as luzes |
||||
|
H1 (LOW) |
H2 (HIGH) |
W1 (LOW) |
W2 (HIGH) |
||
|
sem condutor [mm (pol.)] |
Tipo A |
664 (26,1) |
615 (24,2) |
1.556 (61,3) |
1.620 (63,8) |
|
Tipo B |
1.602 (63) |
1.576 (62) |
|||
|
com condutor [mm (pol.)] |
Tipo A |
654 (25,7) |
605 (23,8) |
1.556 (61,3) |
1.620 (63,8) |
|
Tipo B |
1.602 (63) |
1.576 (62) |
|||
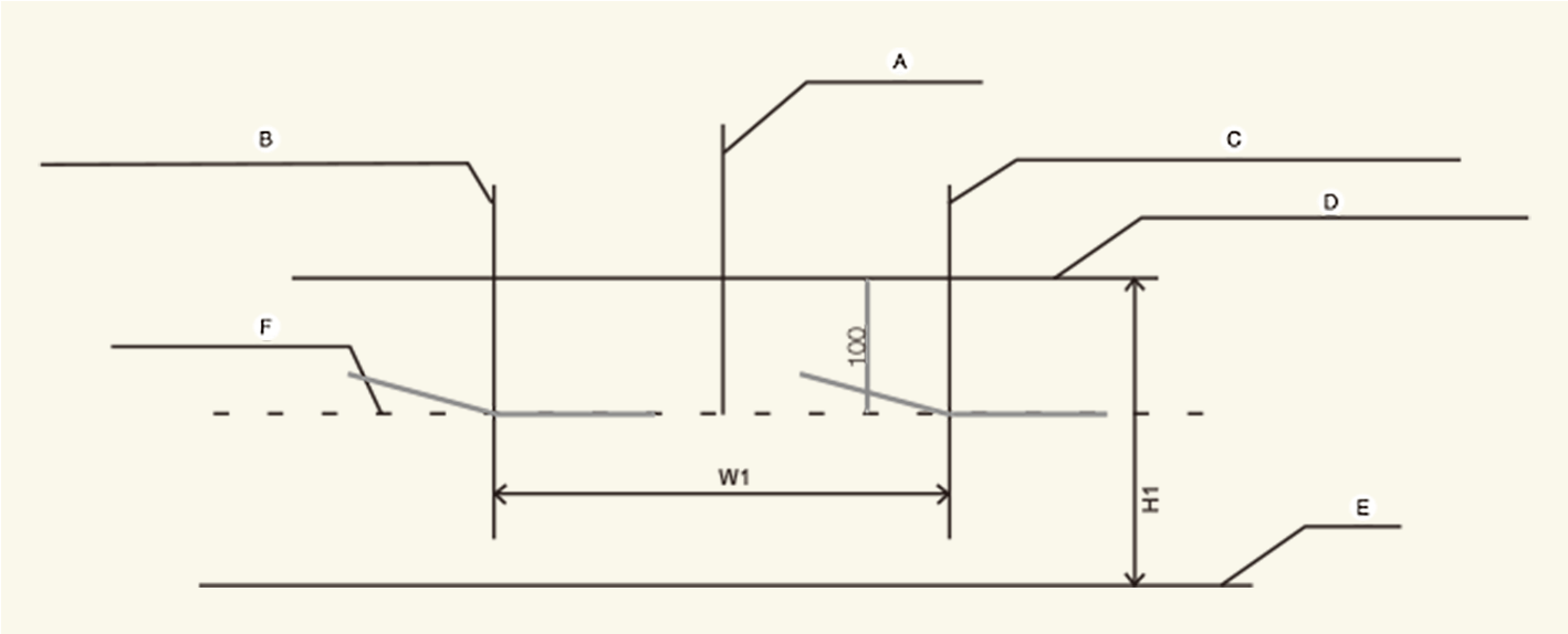
Médios (Veículo LHD)

-
A: Eixo do veículo
-
B: Linha vertical do centro da lâmpada da luz dianteira esquerda
-
C: Linha vertical do centro da lâmpada da luz dianteira direita
-
D: Linha horizontal do centro da lâmpada da luz dianteira
-
E: Solo
-
F: Linha de recorte
Funcionamento
-
Ligue os médios sem o condutor no veículo.
-
A linha de recorte deve ser projetada na linha de recorte indicada na imagem.
-
Na focalização dos médios, a focalização vertical deve ser ajustada após o ajuste da focalização horizontal.
-
Desengate o travão de e coloque a caixa de velocidades na posição N (ponto morto), adicionalmente, se o dispositivo de nivelamento dos faróis estiver equipado, regule o interruptor do dispositivo de nivelamento dos faróis para “0”.
Médios (Veículo RHD)

-
A: Eixo do veículo
-
B: Linha vertical do centro da lâmpada da luz dianteira esquerda
-
C: Linha vertical do centro da lâmpada da luz dianteira direita
-
D: Linha horizontal do centro da lâmpada da luz dianteira
-
E: Solo
-
F: Linha de recorte
Funcionamento
-
Ligue os médios sem o condutor no veículo.
-
A linha de recorte deve ser projetada na linha de recorte indicada na imagem.
-
Na focalização dos médios, a focalização vertical deve ser ajustada após o ajuste da focalização horizontal.
-
Desengate o travão de e coloque a caixa de velocidades na posição N (ponto morto), adicionalmente, se o dispositivo de nivelamento dos faróis estiver equipado, regule o interruptor do dispositivo de nivelamento dos faróis para “0”.